• About Us
  • Services
  • Projects
  • Affiliations
  • Contact
Master Planning Retail Commercial Office Hospitality Municipal & Public Facilities Higher Education Healthcare Mixed Use Residential Interior Design

master planning


Bo Ao Senior Living, Hainan, China
Dharavi Township Redevelopment Master Plan, Mumbai, India
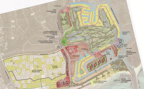
Discovery Bay Master Plan, Grand Bahama
Hatton Bay Master Plan, Caribbean
Hayden Harbor Mixed Use Development, Tempe, Arizona
Luke Krohn Master Plan, Phoenix, Arizona
National Defense University, Kazakhstan
Pinnacle Hills Promenade Mixed Use Center, Rogers, Arkansas
Salt River Generation Seven Master Plan, Scottsdale, Arizona
Salt River Mixed Use Development, Scottsdale, Arizona
St. Croix Resort Master Plan, Caribbean
St. Lucia Master Plan, Caribbean
White Pope Golf Resort Master Plan
Copyright © 2023 FDG-USA. All Rights Reserved   l   Sitemap