About Us
Services
Projects
Affiliations
Contact
Master Planning
Retail
Commercial Office
Hospitality
Municipal & Public Facilities
Higher Education
Healthcare
Mixed Use
Residential
Interior Design
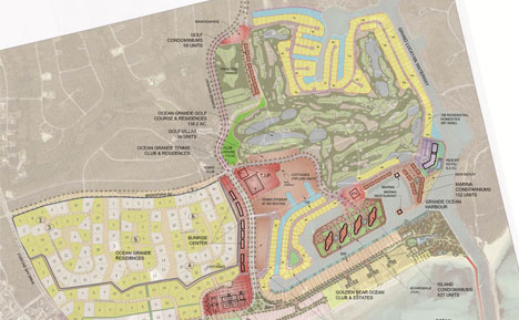
Discovery Bay Master Plan, Grand Bahama
Discovery Bay Master Plan, Grand Bahama