• About Us
  • Services
  • Projects
  • Affiliations
  • Contact
Master Planning Retail Commercial Office Hospitality Municipal & Public Facilities Higher Education Healthcare Mixed Use Residential Interior Design

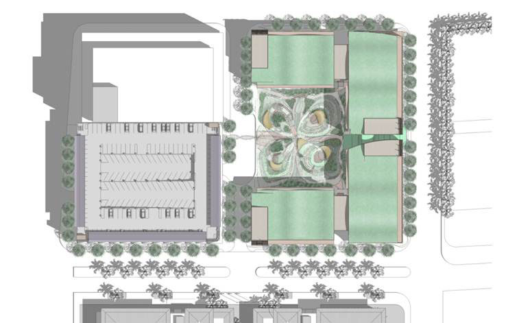
Kamehameha School Research Institute, Honolulu, Hawaii


Kamehameha School Research Institute, Honolulu, Hawaii
Kamehameha School Research Institute, Honolulu, Hawaii
Kamehameha School Research Institute, Honolulu, Hawaii
Kamehameha School Research Institute, Honolulu, Hawaii
Copyright © 2023 FDG-USA. All Rights Reserved   l   Sitemap